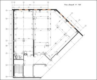
Планировочное решение
для коммерческих помещений Красноярска



Планировочное решение
Это базовый этап проектирования коммерческого или общественного интерьера, на котором формируется схема будущего пространства: зонирование, расстановка мебели и оборудования, логика движения посетителей и персонала.
Грамотно выполненная планировка позволяет избежать ошибок при ремонте, сократить затраты и создать удобное, функциональное пространство для бизнеса.

Кому подходит услуга?
Если у вас бизнес: фуд-корт, стоматология, торговое помещение или
детский развлекательный центр или офис то
планировочное решение — это минимально необходимый объем проектной документации
для запуска ремонта и дальнейшей работы.
Как мы работаем
Этапы разработки планировочного решения:
- выезд и осмотр объекта;
- составление технического задания;
- разработка вариантов планировки;
- согласование и доработка выбранного решения.
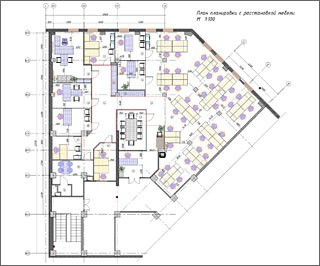
Рациональное использование помещения
Планировочное решение позволяет:
- грамотно выполнить зонирование коммерческого помещения;
- учесть все пожелания заказчика;
- эргономично разместить мебель и оборудование;
- создать комфортные условия для клиентов и сотрудников.


Стоимость услуги
Цена планировочного решения зависит от:
- площади и конфигурации помещения;
- назначения объекта (офис, ритейл, HoReCa и др.);
- сложности проектирования и количества вариантов.
Чтобы уточнить стоимость планировочного решения коммерческого помещения, свяжитесь со мной удобным способом.
Планировочное решение с учетом норм и правил
Разработка планировочных решений для коммерческих помещений выполняется с
учетом действующих требований: технического регламента, СНиП, СанПиН.
Это особенно важно для объектов с повышенными требованиями — кафе,
стоматологий, детских центров и торговых помещений.

